Home
About
Gallery
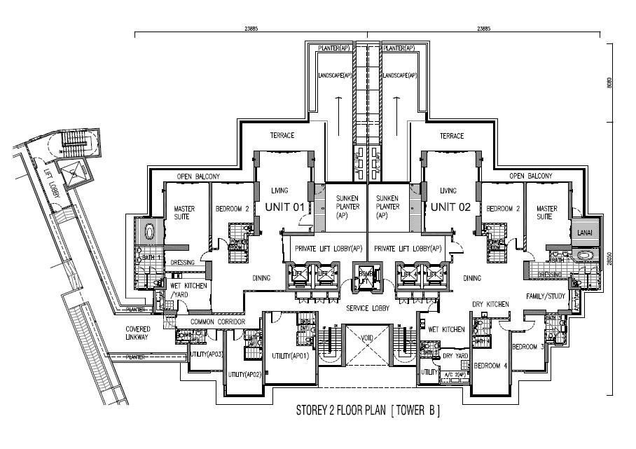
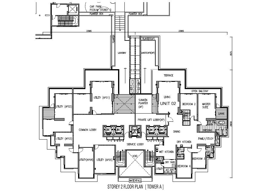
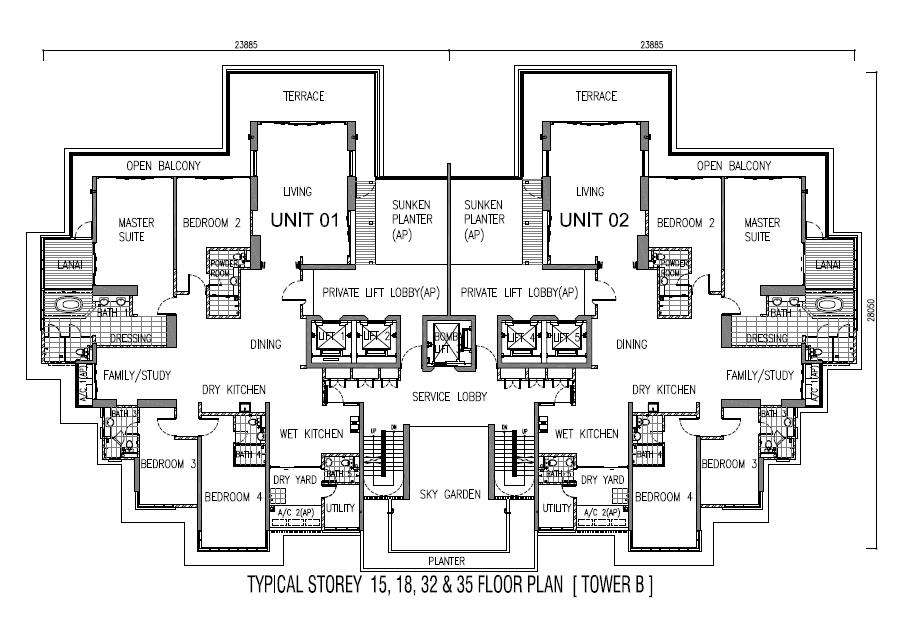
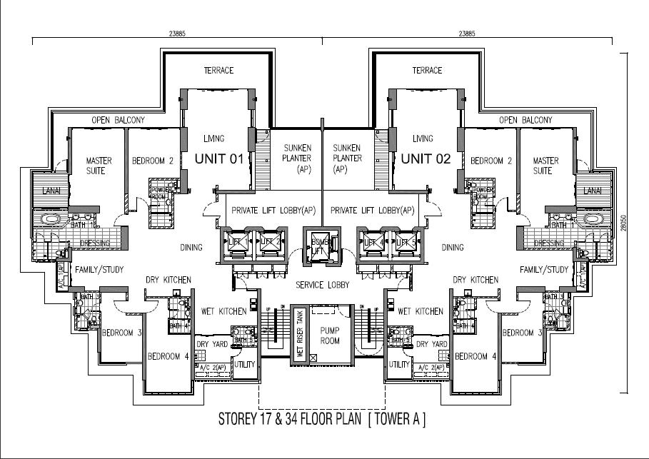
Floor Plan
Site Plan
Award
Location
Contact
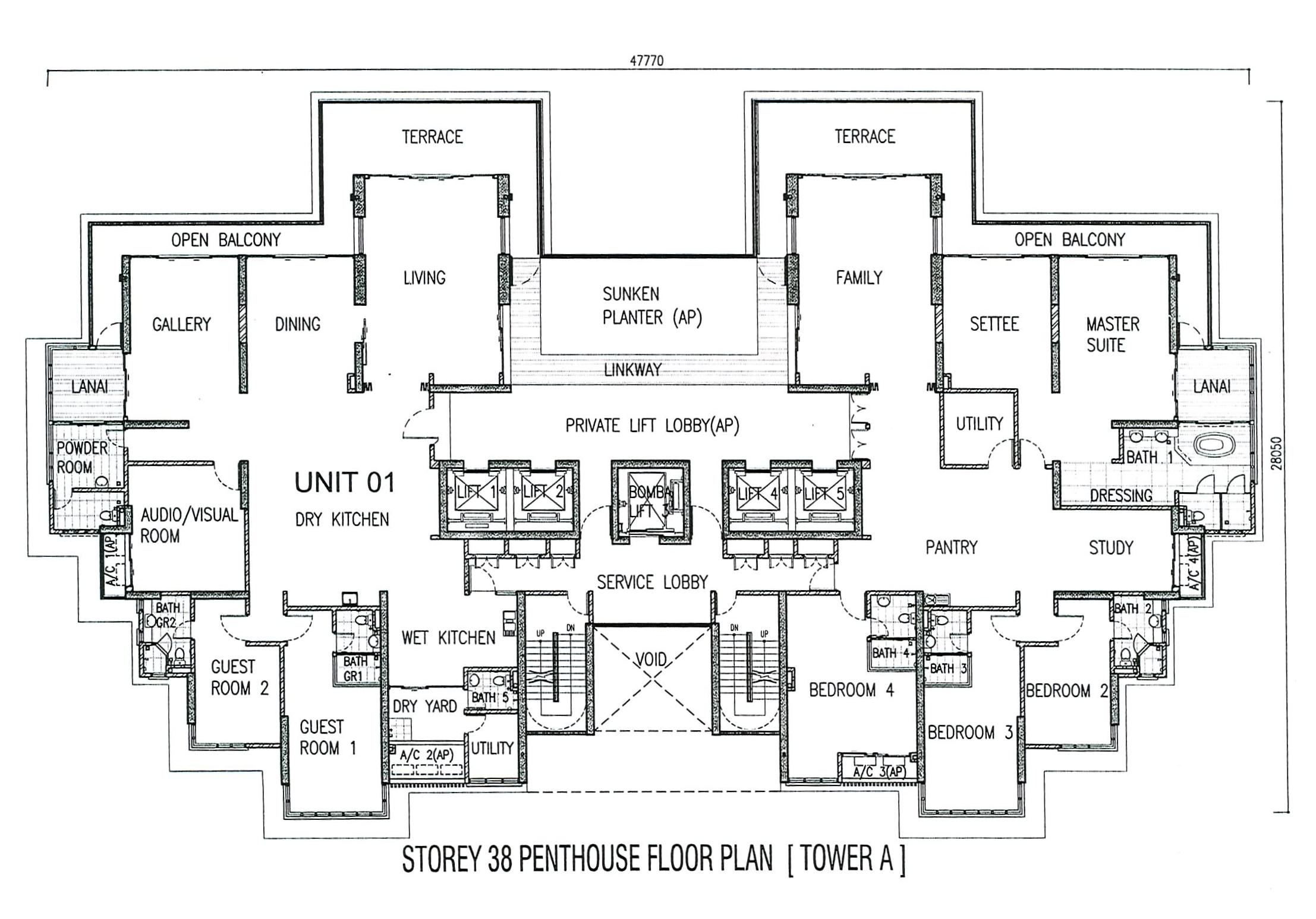
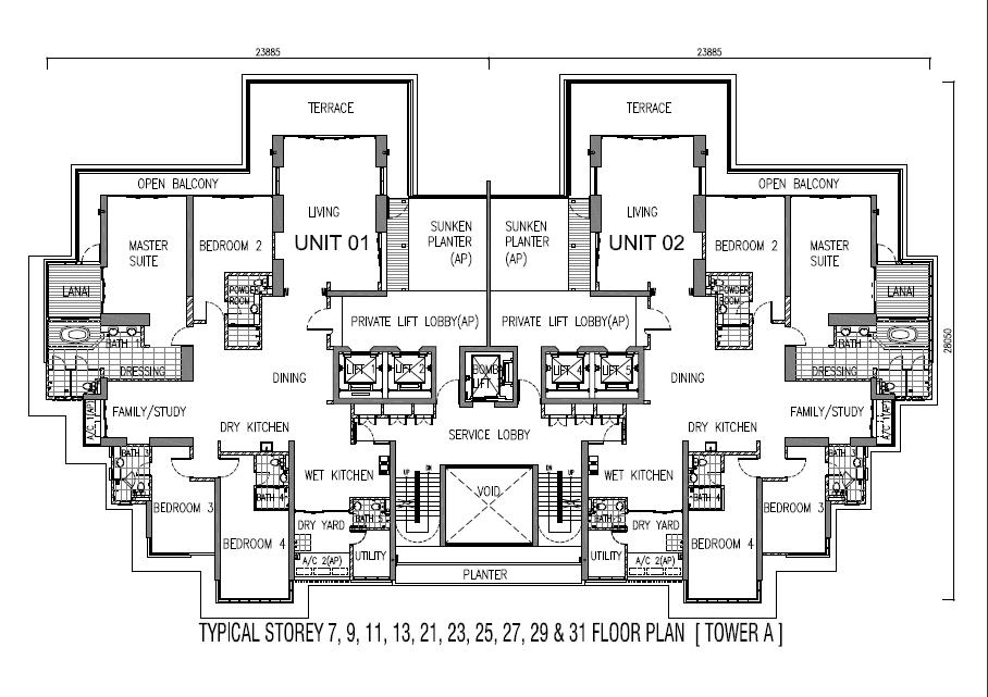
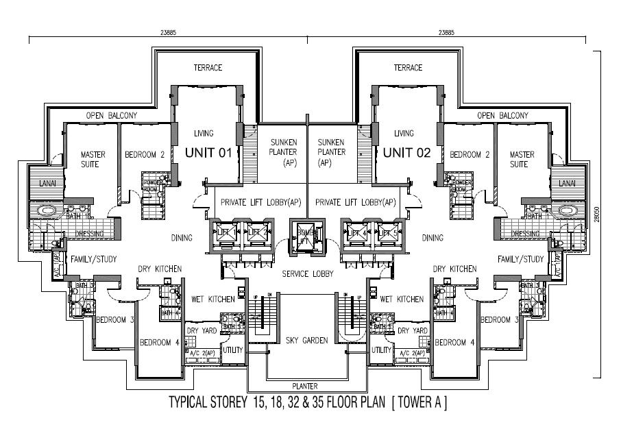
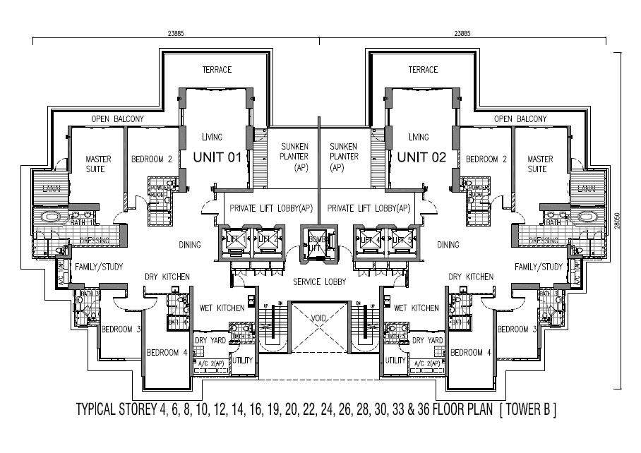
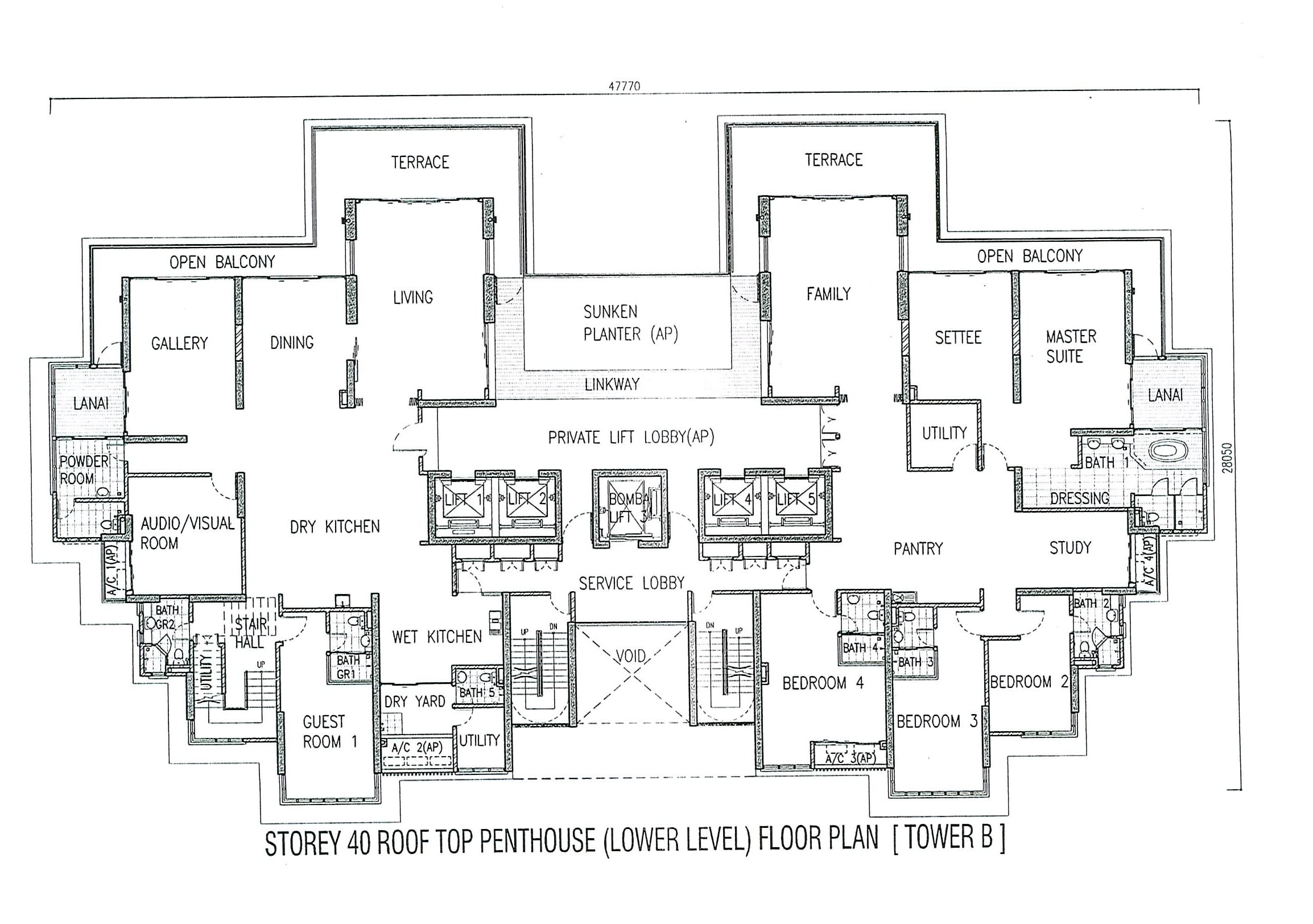
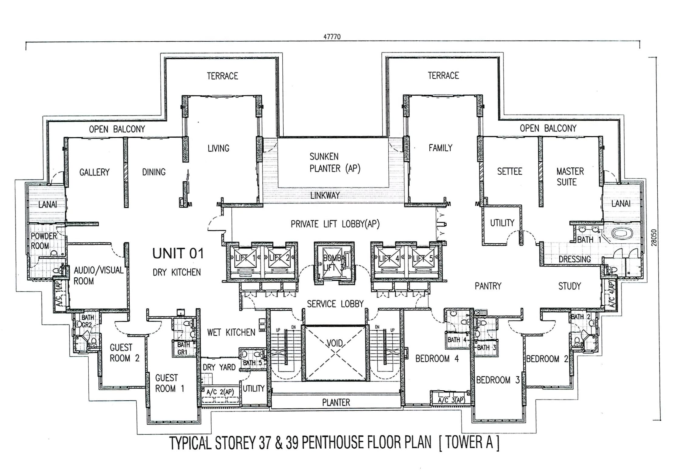
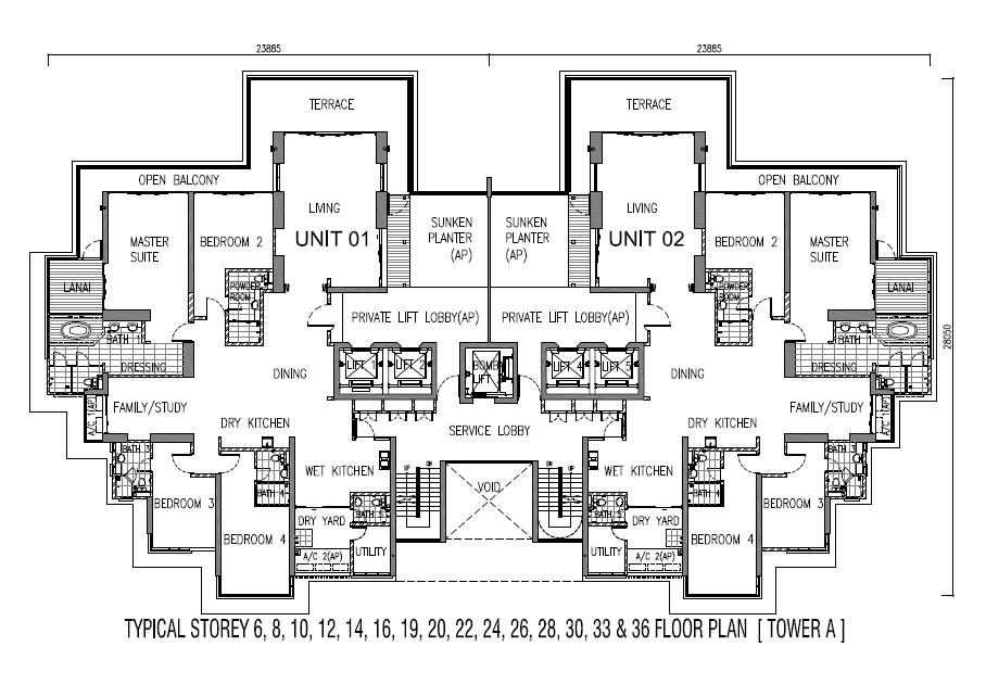
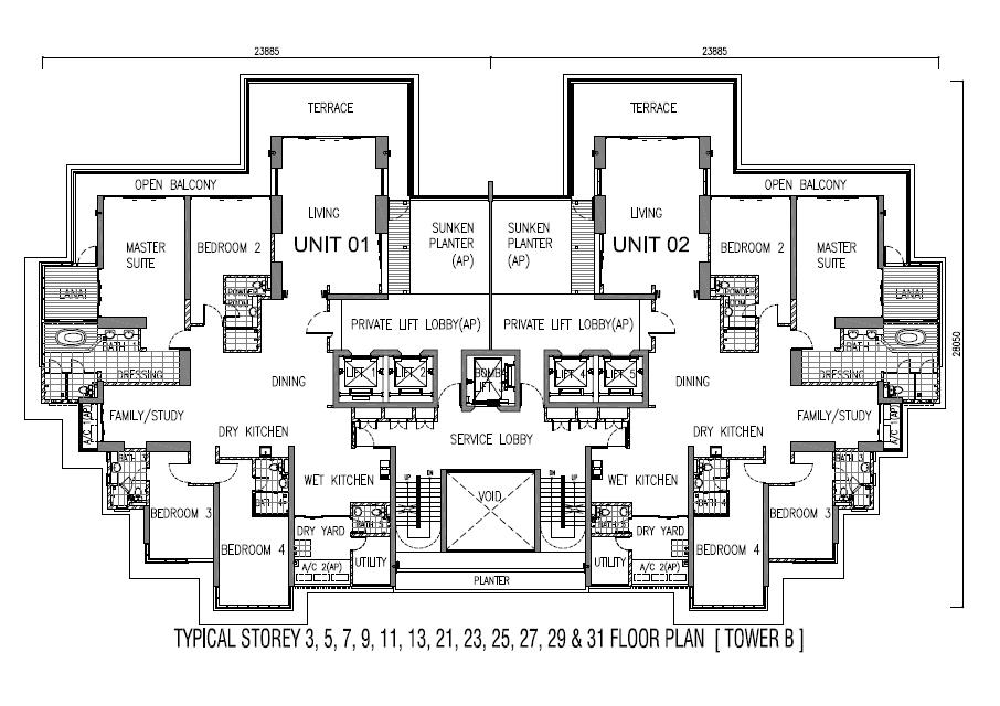
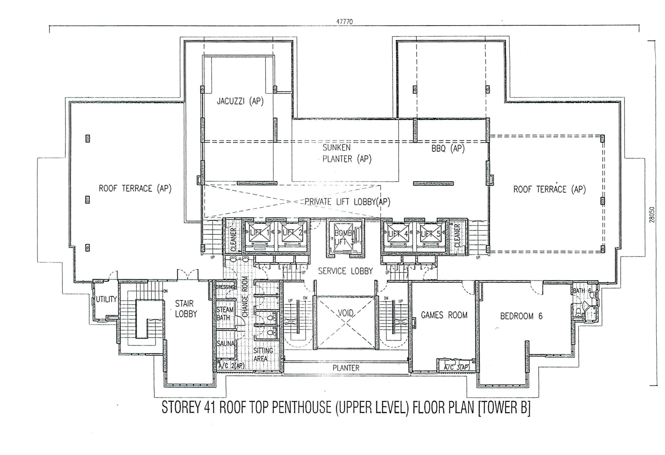
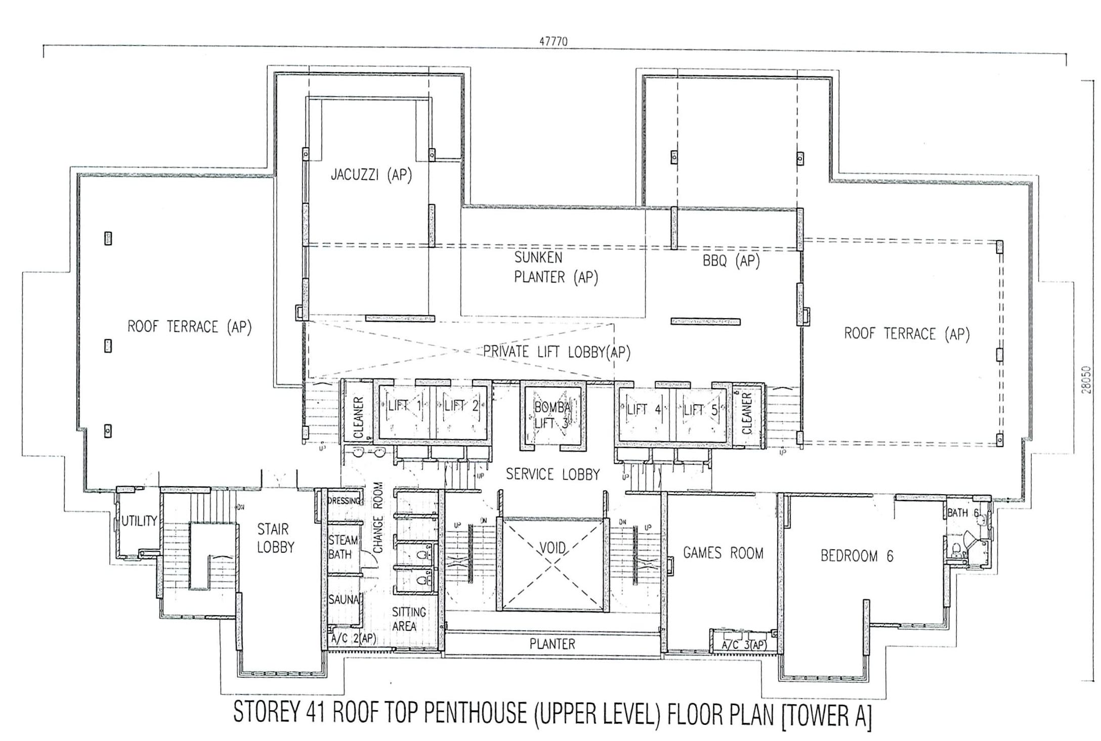
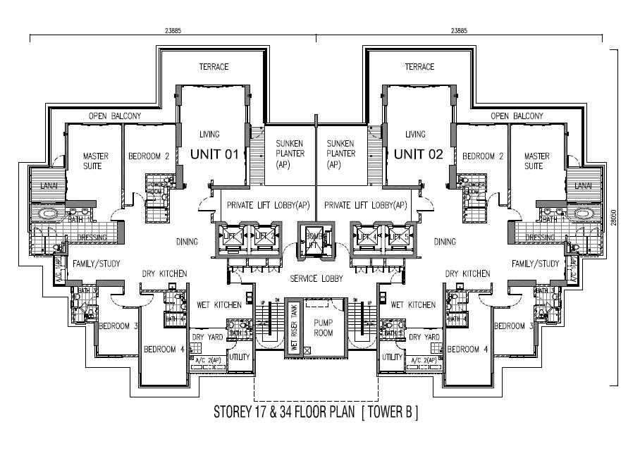
Floor Plan